properties selected

Create a new report

Region Name

Unit 1/Lot 33 Crestmead Logistics Estate

Property Details
  • Awning Area (m2)
    sqm
  • Land Area (m2)
    sqm
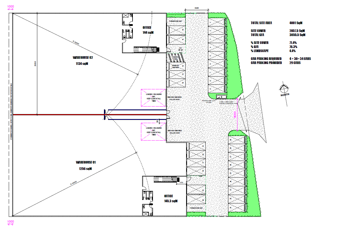
  • Office Area (m2)
    344 sqm
  • Showroom Area (m2)
    0 sqm
  • Warehouse Area (M2)
    1256 sqm
  • Total Area (M2)
    1600 sqm
SELECT PROPERTY FOR REPORT
  • Annual Rental
    $296000
  • Rate PSQM
    $185