properties selected

Create a new report

Region Name

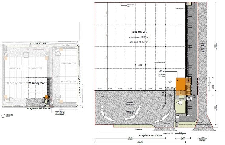
Tenancy 2D Mapletree Drive

Property Details
  • Awning Area (m2)
    0 sqm
  • Land Area (m2)
    16137 sqm
  • Office Area (m2)
    491 sqm
  • Showroom Area (m2)
    0 sqm
  • Warehouse Area (M2)
    9827 sqm
  • Total Area (M2)
    10318 sqm
SELECT PROPERTY FOR REPORT
  • Annual Rental
    $0
  • Rate PSQM
    $0
  • Outgoings
    $16