properties selected

Create a new report

Region Name

Tenancy 1/500 Green Road

Property Details
  • Awning Area (m2)
    1485 sqm
  • Land Area (m2)
    0 sqm
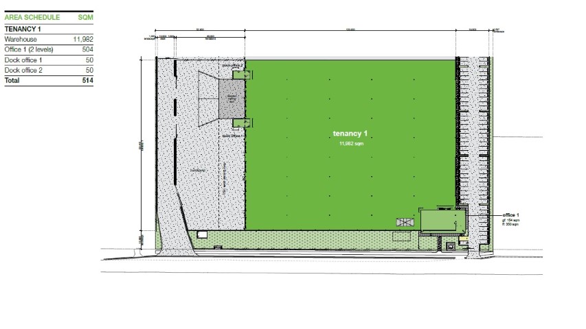
  • Office Area (m2)
    604 sqm
  • Showroom Area (m2)
    0 sqm
  • Warehouse Area (M2)
    11982 sqm
  • Total Area (M2)
    12586 sqm
SELECT PROPERTY FOR REPORT
  • Annual Rental
    $1397046
  • Rate PSQM
    $111
  • Outgoings
    $15psqm
  • Reviews
    TBC
  • Lease Commencement
    1/09/2022
  • Lease Expiry
    31/08/2027
  • Lease Term
    5 Years