properties selected

Create a new report

Region Name

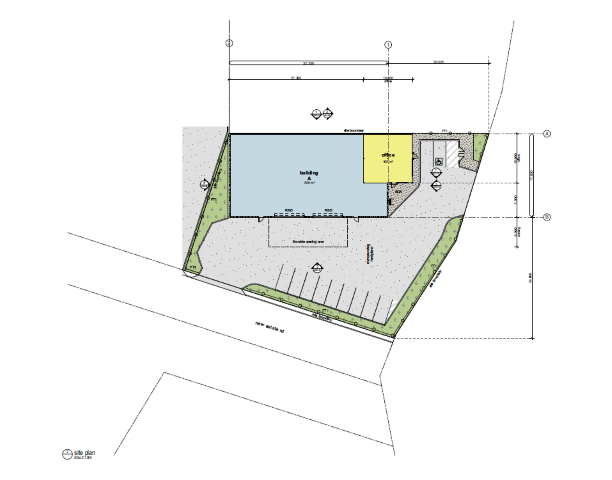
TA Hannah Rigby Lane

Property Details
  • Awning Area (m2)
    0 sqm
  • Land Area (m2)
    0 sqm
  • Office Area (m2)
    100 sqm
  • Showroom Area (m2)
    0 sqm
  • Warehouse Area (M2)
    500 sqm
  • Total Area (M2)
    600 sqm
SELECT PROPERTY FOR REPORT
  • Annual Rental
    $117000
  • Rate PSQM
    $195
  • Outgoings
    TBA