properties selected

Create a new report

Region Name

Lot 812 Quilton Place

Property Details
  • Awning Area (m2)
    sqm
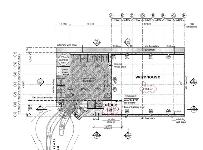
  • Land Area (m2)
    4584 sqm
  • Office Area (m2)
    302 sqm
  • Showroom Area (m2)
    0 sqm
  • Warehouse Area (M2)
    2251 sqm
  • Total Area (M2)
    2553 sqm
SELECT PROPERTY FOR REPORT
  • Annual Rental
    $344655
  • Rate PSQM
    $135
  • Outgoings
    100% PBL
  • Reviews
    CPI or 3%
  • Lease Commencement
    1/01/2023
  • Lease Expiry
    31/12/2027
  • Lease Term
    5 Years