properties selected

Create a new report

Region Name

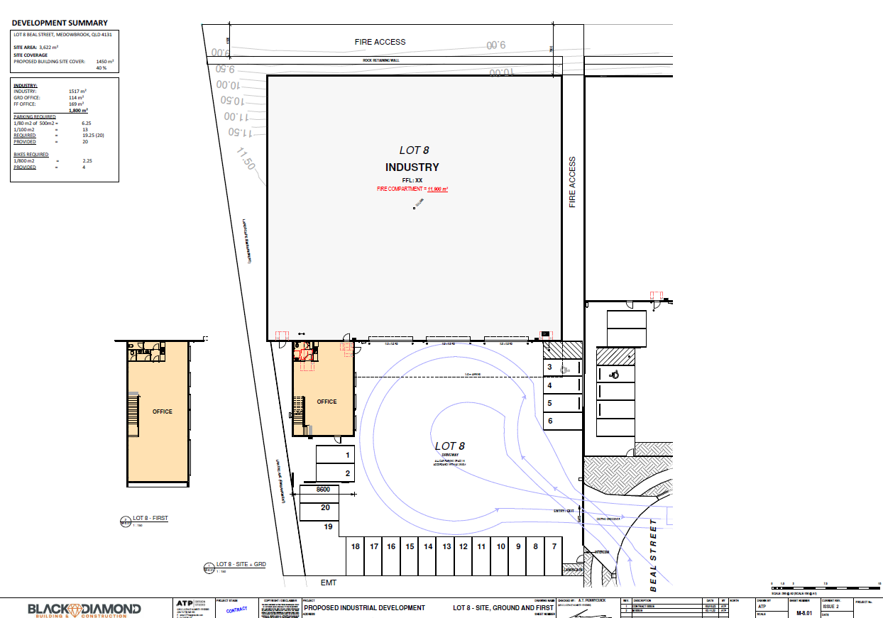
Lot 8/25-60 Beal Street

Property Details
  • Awning Area (m2)
    sqm
  • Land Area (m2)
    3622 sqm
  • Office Area (m2)
    283 sqm
  • Showroom Area (m2)
    0 sqm
  • Warehouse Area (M2)
    1517 sqm
  • Total Area (M2)
    1800 sqm
SELECT PROPERTY FOR REPORT
  • Annual Rental
    $279000
  • Rate PSQM
    $155
  • Outgoings
    100% Payable by Lessee