properties selected

Create a new report

Region Name

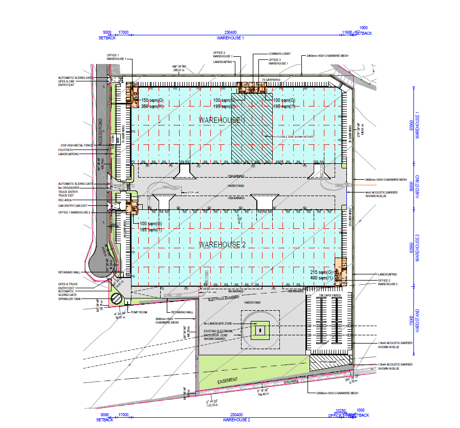
Warehouse 1/30 Freight Place

Property Details
  • Awning Area (m2)
    0 sqm
  • Land Area (m2)
    0 sqm
  • Office Area (m2)
    1090 sqm
  • Showroom Area (m2)
    0 sqm
  • Warehouse Area (M2)
    18940 sqm
  • Total Area (M2)
    20030 sqm
SELECT PROPERTY FOR REPORT
  • Annual Rental
    $
  • Rate PSQM
    $
  • Outgoings
    100% Payable by Lessee