properties selected

Create a new report

Region Name

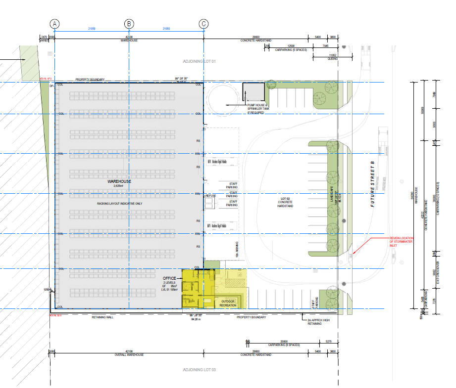
Lot 2 Mcleod Road

Property Details
  • Awning Area (m2)
    sqm
  • Land Area (m2)
    5440 sqm
  • Office Area (m2)
    295 sqm
  • Showroom Area (m2)
    0 sqm
  • Warehouse Area (M2)
    2625 sqm
  • Total Area (M2)
    2920 sqm
SELECT PROPERTY FOR REPORT
  • Annual Rental
    $481800
  • Rate PSQM
    $165
  • Outgoings
    Net Rental
  • Reviews
    Negotiable
  • Lease Term
    Negotiable