properties selected

Create a new report

Region Name

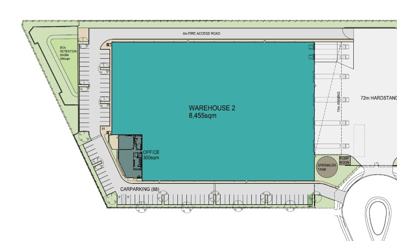
95-100 Metroplex Place

Property Details
  • Awning Area (m2)
    0 sqm
  • Land Area (m2)
    18248 sqm
  • Office Area (m2)
    300 sqm
  • Showroom Area (m2)
    0 sqm
  • Warehouse Area (M2)
    8455 sqm
  • Total Area (M2)
    8755 sqm
SELECT PROPERTY FOR REPORT
  • Annual Rental
    $1050600
  • Rate PSQM
    $120
  • Outgoings
    $23-$25psqm