properties selected

Create a new report

Region Name

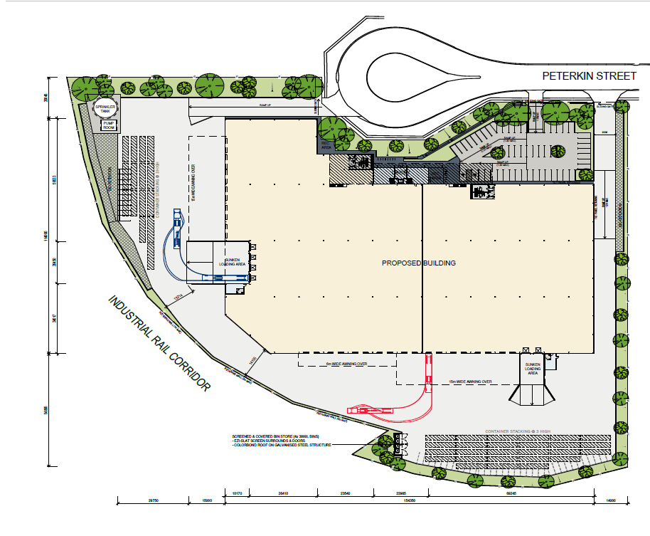
A/56 Peterkin Street

Property Details
  • Awning Area (m2)
    0 sqm
  • Land Area (m2)
    sqm
  • Office Area (m2)
    466 sqm
  • Showroom Area (m2)
    0 sqm
  • Warehouse Area (M2)
    5906 sqm
  • Total Area (M2)
    6372 sqm
SELECT PROPERTY FOR REPORT
  • Annual Rental
    $
  • Rate PSQM
    $
  • Outgoings
    Payable by tenant