properties selected

Create a new report

Region Name

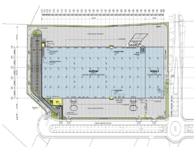
51 Clyde Gessel Place

Property Details
  • Awning Area (m2)
    0 sqm
  • Land Area (m2)
    71343 sqm
  • Office Area (m2)
    560 sqm
  • Showroom Area (m2)
    0 sqm
  • Warehouse Area (M2)
    35375 sqm
  • Total Area (M2)
    35935 sqm
SELECT PROPERTY FOR REPORT
  • Annual Rental
    $3773175
  • Rate PSQM
    $105
  • Outgoings
    100% Paid by the lessee
  • Reviews
    TBA
  • Lease Commencement
    13/03/2018
  • Lease Expiry
    10/03/2028
  • Lease Term
    10 Years