properties selected

Create a new report

Region Name

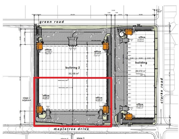
2AD Mapletree Drive

Property Details
  • Awning Area (m2)
    2216 sqm
  • Land Area (m2)
    32324 sqm
  • Office Area (m2)
    982 sqm
  • Showroom Area (m2)
    0 sqm
  • Warehouse Area (M2)
    19655 sqm
  • Total Area (M2)
    20637 sqm
SELECT PROPERTY FOR REPORT
  • Annual Rental
    $
  • Rate PSQM
    $