properties selected

Create a new report

Region Name

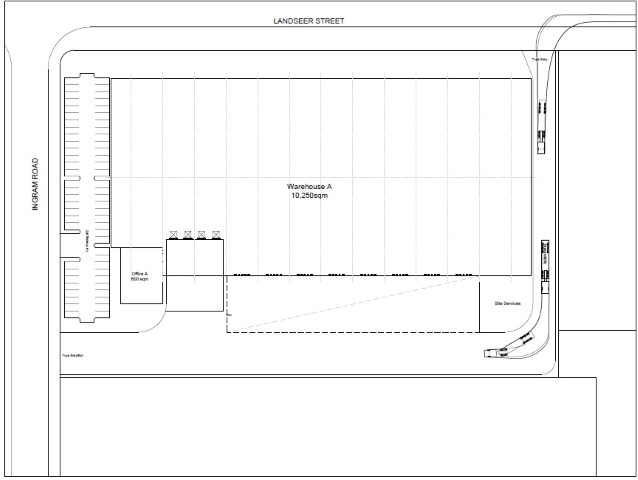
D&C/189 Ingram Road

Property Details
  • Awning Area (m2)
    1350 sqm
  • Land Area (m2)
    20230 sqm
  • Office Area (m2)
    600 sqm
  • Showroom Area (m2)
    0 sqm
  • Warehouse Area (M2)
    10250 sqm
  • Total Area (M2)
    10850 sqm
SELECT PROPERTY FOR REPORT
  • Annual Rental
    $0
  • Rate PSQM
    $0
  • Outgoings
    100% PBL